
Yarpole Barn
A modest and contemporary oak framed barn (part of a larger custom and self build collective scheme of 9 Border Oak homes delivered in partnership between Border Oak and the landowner) in a rural village on the Herefordshire and Shropshire border.
Yarpole Barn was awarded ‘Sprit of Self Build’ in the 2023 Homebuilding and Renovating Awards.



Border Oak worked in partnership with the landowner over several years to create a unique edge of village development providing a mix of self build, custom build and custom finish plots of varying sizes and designs. The project uses Border Oak designs, materials and detail throughout despite each home being bespoke.
Border Oak designed the scheme and managed the planning application process on behalf of the landowner. Once detailed planning had been secured each plot was sold by Border Oak to customers wishing to build their own home, with each contract designed to reflect the purchasers preference – self build, custom build, or custom finish. The landowners retained a plot for their own home and another for their daughter Roxy. Roxy is a talented young builder and has built this beautiful and contemporary two bedroom Border Oak barn for herself.
Border Oak provided Roxy with the superstructure (oak frame, roof structure and encapsulation panels) and then Roxy undertook the remaining building work herself, with help from others when needed.
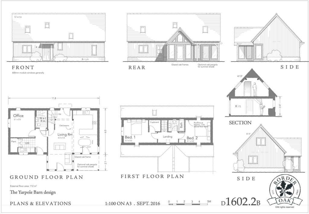
With a spacious open plan ground floor, including the impressive oak framed vaulted ‘garden room’ Roxy has also incorporated a home gym (that could become another bedroom) as she is a keen sportswoman. The home is heated by underfloor heating running from an air source heat Pump, is super insulated, virtually airtight and passive solar designed and with a simple palette of sustainable natural materials – oak, timber weatherboard and slate.
The finished home is a testament to Roxy’s efforts and skills – and shows her keen eye for detail and a high quality finish. It is an exemplary first home – both beautiful and affordable but also light, sustainable and adaptable.
Project Specifics
LOCATION: Herefordshire Shropshire border
SIZE: 112m2
FEATURES: Vertical boarding, vaulted oak frame, open plan living, ground floor wet room, rooms in the roof
BORDER OAK SCOPE OF WORK: Design, Planning, ‘super structure’ supply and erect of the oak frame, encapsulation system and secondary roof structure

Plans













Customer Comment
“I really enjoyed tiling the floors, kitchen and bathrooms to my design and choice and I love living in my house. I also know I’m lucky to have a very helpful dad!!”