
Willow Cottage
An enlarged version of the original Pearmain Cottage, this property was designed very much with the clients’ individual needs in mind – to accommodate an office and annex – on a fabulous plot.
Winner of the Build It 2018 Award for Best Oak Frame Home



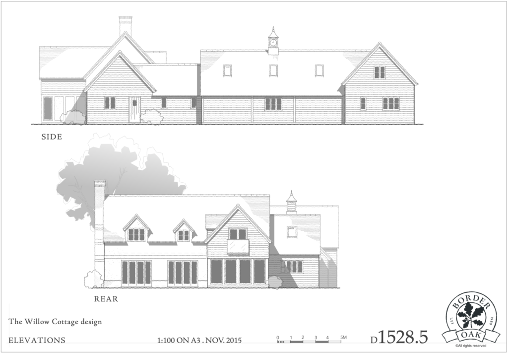
One of our larger Pearmain Cottage designs, this incredibly pretty home incorporates all of the distinctive features and remains true to the ‘all important’ proportions and scale.
The main cottage is linked to a substantial home office, which then leads to a self contained ‘granny annex’ – the office (rendered) and annex (weatherboarded) are designed to be slighly visually subservient – echoing local outbuilding forms and softening the profile of the collective complex.
Inspired and influenced by the Border Oak showhome in Kingsland, Willow Cottage includes all the trademark details (often imitated but rarely equalled) that personify Border Oak’s Pearmain Cottage – the oak porch, heritage greeny/grey colour, floor to ceiling glass within an oak frame, and the perfect combination of render, oak, boarding and brick plinth.
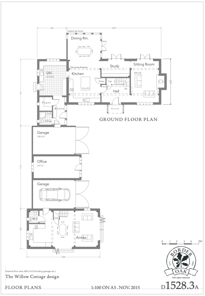
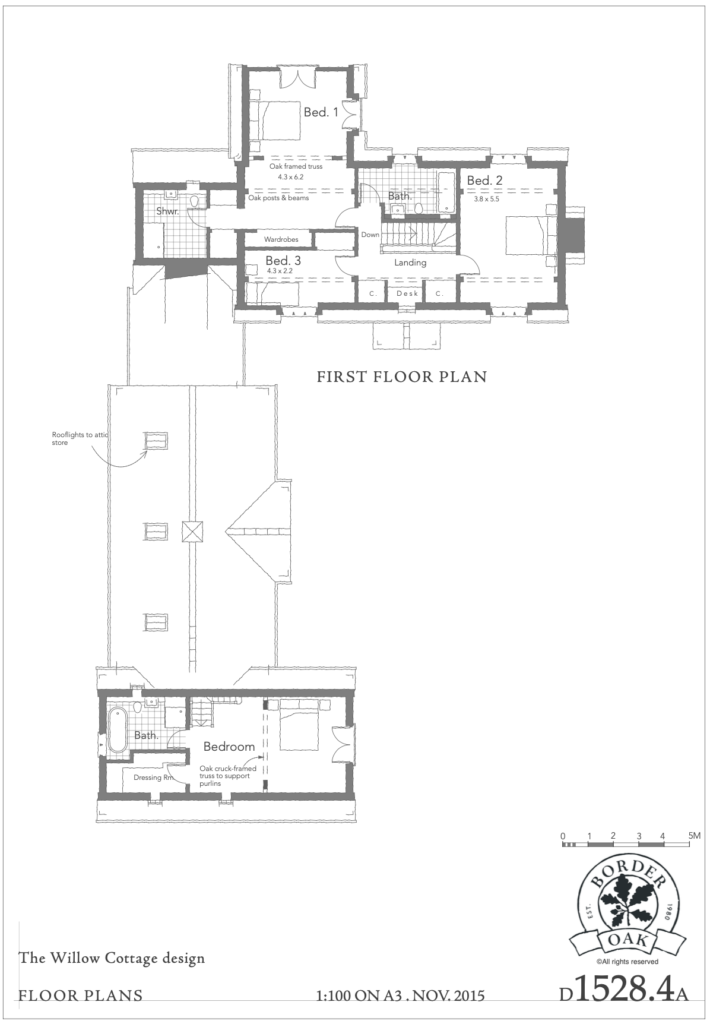
Internally, Willow Cottage is very spacious – the main rooms look out over the fabulous garden and rural backdrop. There is an easy, uninterrupted flow through the ground floor with each space beautifully furnished in consistent soft tones. On the upper floors of both the annex and the main cottage there are vaulted ceilings and balconies, large windows and modern high quality fittings.
This house was a partnership project, whereby Border Oak took the build to a watertight stage and our clients then completed the build using local labour.
We were all thrilled and delighted to hear that Willow Cottage had been awarded “Best Oak Framed House” in the prestigious Build It Magazine Awards 2018
Project specifics
Size: 404m2
Features: Granny Annex, Home Office, Large Kitchen, Vaulted Master Bedroom
Border Oak Scope of works: Design, Planning and Oak Frame

Plans













Customer Comment
“Enter quote text here”