
Sussex Coastal Cottage
This very pretty brick cottage was inspired by our Pearmain Cottage design but drawn to echo the local materials and features found in the coastal location. It is super sustainable and high performance due to the construction detailing and renewable technologies deployed. Border Oak were commissioned to build an ancillary annex and single storey dwelling on the same plot – providing multi generational living, adaptability and efficient shared use of resources such as the productive market garden and ground mounted PV.



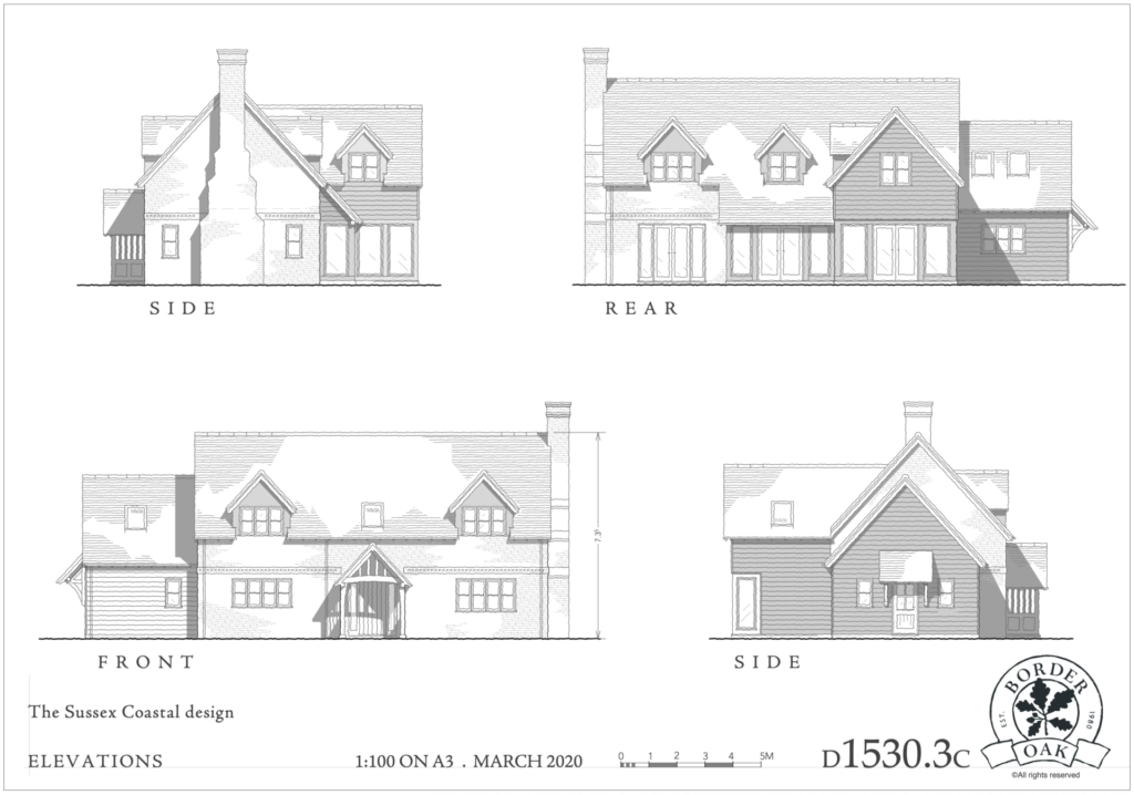
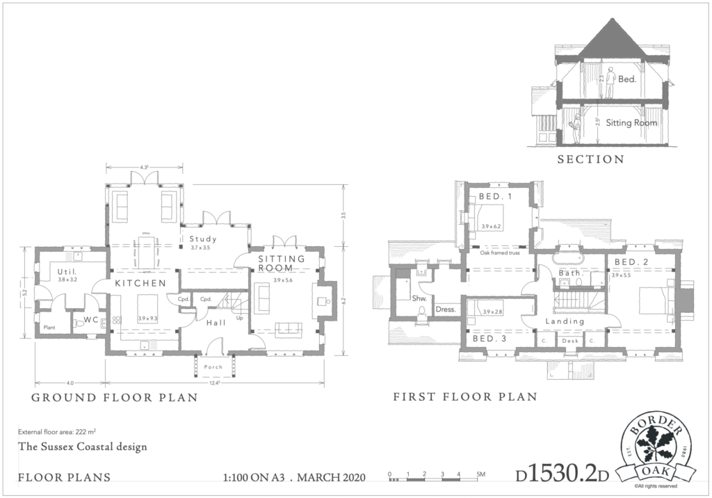
This cottage is based upon the traditional bay format that we often use when designing our properties – and is ideally suited to green oak framing. The three bay primary section – which has been faced in handmade bricks under a clay tile roof – has a lower weatherboarded bay added to one end (forming the utility and boot room with a bathroom above), with an additional bay to the rear (creating the glazed dining room below a vaulted bedroom) – also in weatherboard and with a dropped ridge. Oak porches add interest to the elevations.
This collection of vernacular and proportional forms provides a softer organic profile helping the cottage graduate into the plot – not only concealing volume from each elevation but also complementing the naturalistic planting and landscaping which has helped the cottage to feel established and grounded. The layout also produces a sun trap terrace that is private and accessible from all the ground floor rooms.
Border Oak were honoured to be commissioned to build two further homes on site – a single storey barn and independent annex – enabling three generations of the to live together and look after one another, as well as maintain the productive kitchen gardens and care for the animals whilst sharing renewable technologies.
Project Specifics
LOCATION: Sussex
SIZE: 200m2
FEATURES: Multi generational project – house, annex, single storey barn and outbuildings. Renewable technology – inc. ground source heat pump & PV Panels. Natural materials.
BORDER OAK PACKAGE: Design, planning and full build contract.

Plans





























