
Mortimer Barn
Mortimer Barn is a beautiful family home in a North Herefordshire village. This is the families second Border Oak project, having previously self built a cottage nearby.
This plot was one of 7 fully serviced self & custom build plots on a Border Oak development in a Conservation Area.



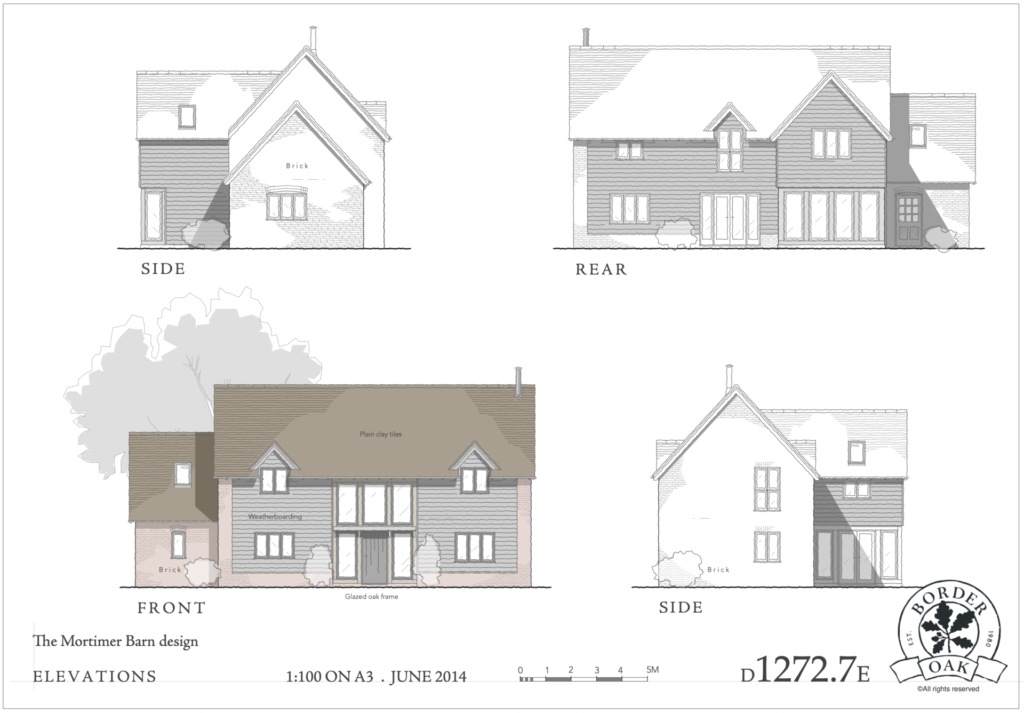
Mortimer Barn is a classic Border Oak design – a great example of our ‘contemporary vernacular’ approach to building in sensitive locations. A beautiful mix of stained weatherboarding and handmade bricks, with a glazed central feature and handmade clay tile roof.
The considered palette of natural materials selected by Border Oak aligns with the other properties on the development to ensure cohesion yet retain distinctiveness.
The landscaping master plan, also designed and delivered by Border Oak included retaining all existing trees and hedgerows, adding many new trees and creating plot boundaries from new native hedges with wide grassy verges, cobbles and local gravel.
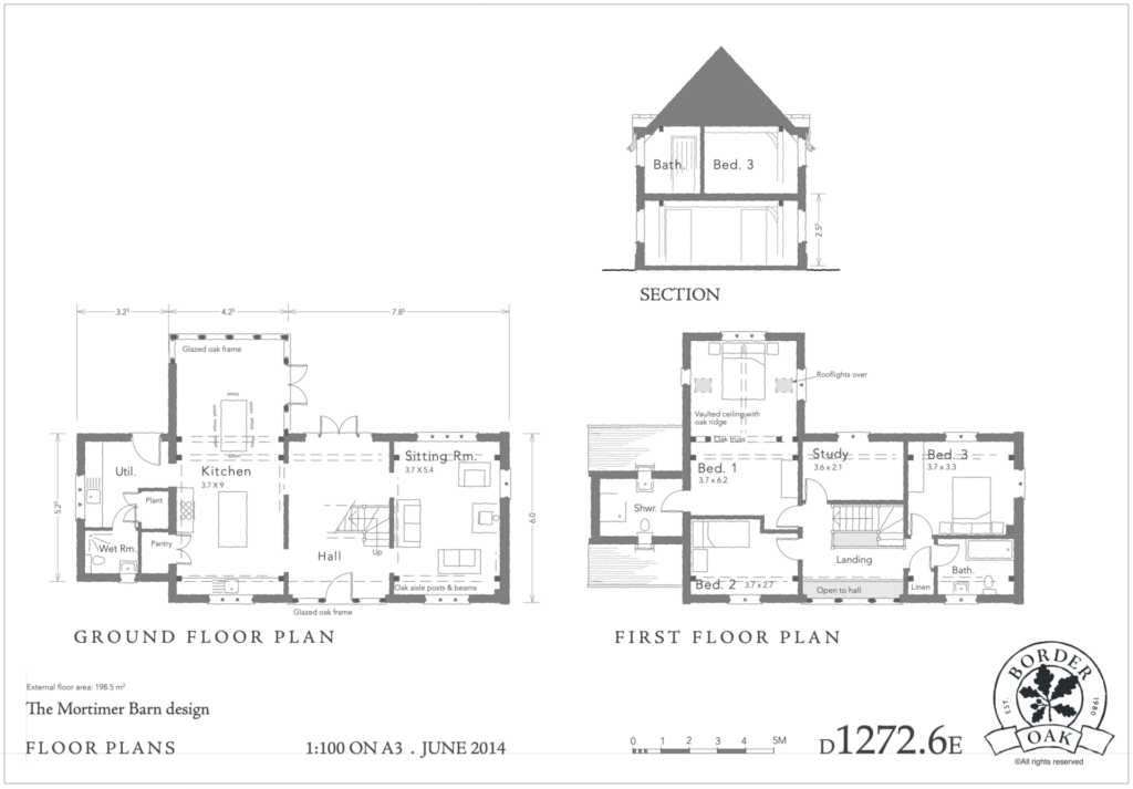
The layout of Mortimer Barn is also a triumph. A spacious and bright central hallway with architectural staircase & bridge landing connects both sides of the barn. A partially open plan ground floor ensures the family spaces flow, with the large kitchen benefitting from floor to ceiling glazing and French doors. There is a snug at one end of the kitchen and a second sitting area across the dining hallway.
Upstairs, the amazing bridge landing looks over the oak and glass hallway, leading to three spacious bedrooms, a study (or fourth bedroom) and two generous bathrooms. The master suite is tucked away to the rear with windows set to frame the views through the mature tree canopies
Project Specifics
LOCATION: North Herefordshire
SIZE: 194m2
FEATURES: Partially open plan, glazed, oak frame entrance, vaulted ceiling, bridge landing.
BORDER OAK PACKAGE: Oak Frame & ‘Water Tight’ shell

Plans































