
Kimbolton Barn
Border Oak found a redundant farm yard a short distance from a lovely village and secured planning for four bespoke oak framed homes, including the restoration and restitution of the whole site, to include the removal of all the old buildings and concrete yards, together with new biodiversity rich landscaping and four new sustainable homes that better suited the rural location and neighbouring traditional apple orchards.



Building a bespoke new home at the best of times is a complicated task, but building a bespoke home during an unprecedented global pandemic is an entirely different conundrum! But that is the circumstance that Border Oak and our clients found ourselves in – with construction companies instructed to ‘carry on’ yet supply chains were closing and strict travel and social distancing restrictions were deployed.
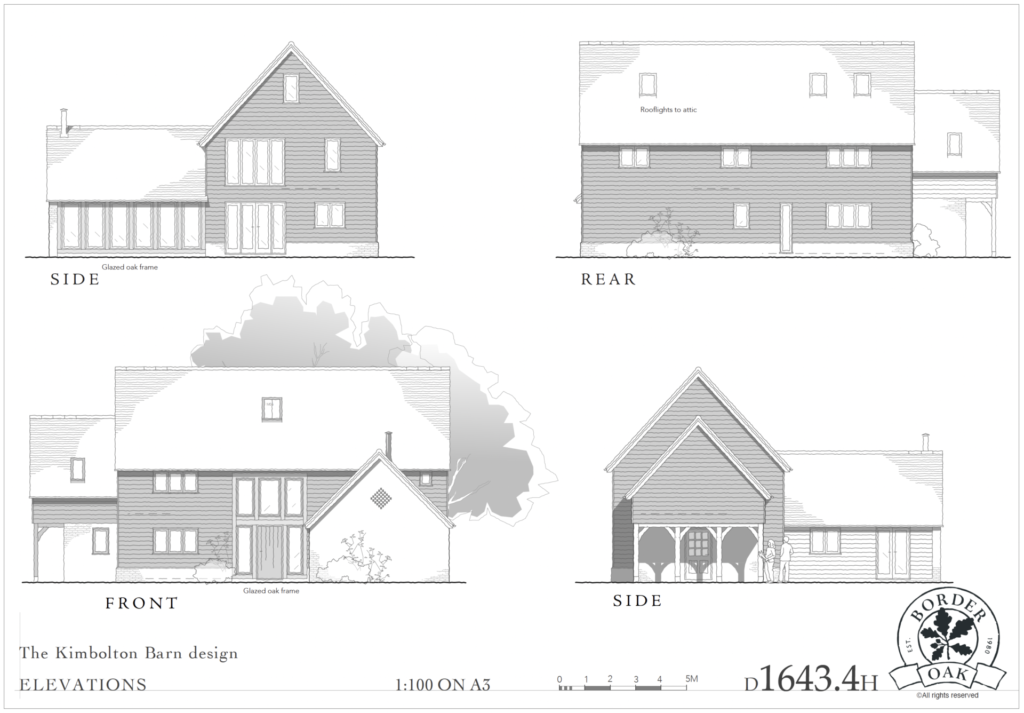
However the incredible end result is a testament to our clients resourcefulness and Border Oak’s unwavering determination to create an outstanding product amidst the confusion and ever changing restrictions imposed. Kimbolton Barn is a vernacular but contemporary home – welcoming and highly detailed, beautifully crafted from natural and sustainable materials, with a clever layout and amazing views.
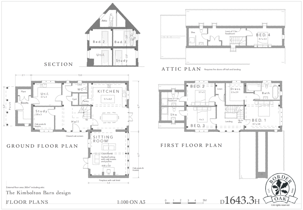
The hallway is a particular delight – with the handmade Border Oak staircase rising from the ground floor to the attic with gently curved details and generous landing and passing spaces, an architectural delight. As is the sitting room with a vaulted cruck frame, inglenook fireplace and
Project Specifics
LOCATION: North Herefordshire
SIZE:
FEATURES: Weatherboarded elevations, attic floor, vaulted sitting room with inglenook
BORDER OAK SCOPE OF WORKS: Plot finding, planning, design and complete build.







































Customer Comment
“We knew that if we were going to build our own home, it had to be Border Oak.
We love the timeless way the frame was put together using age-old skills’”