
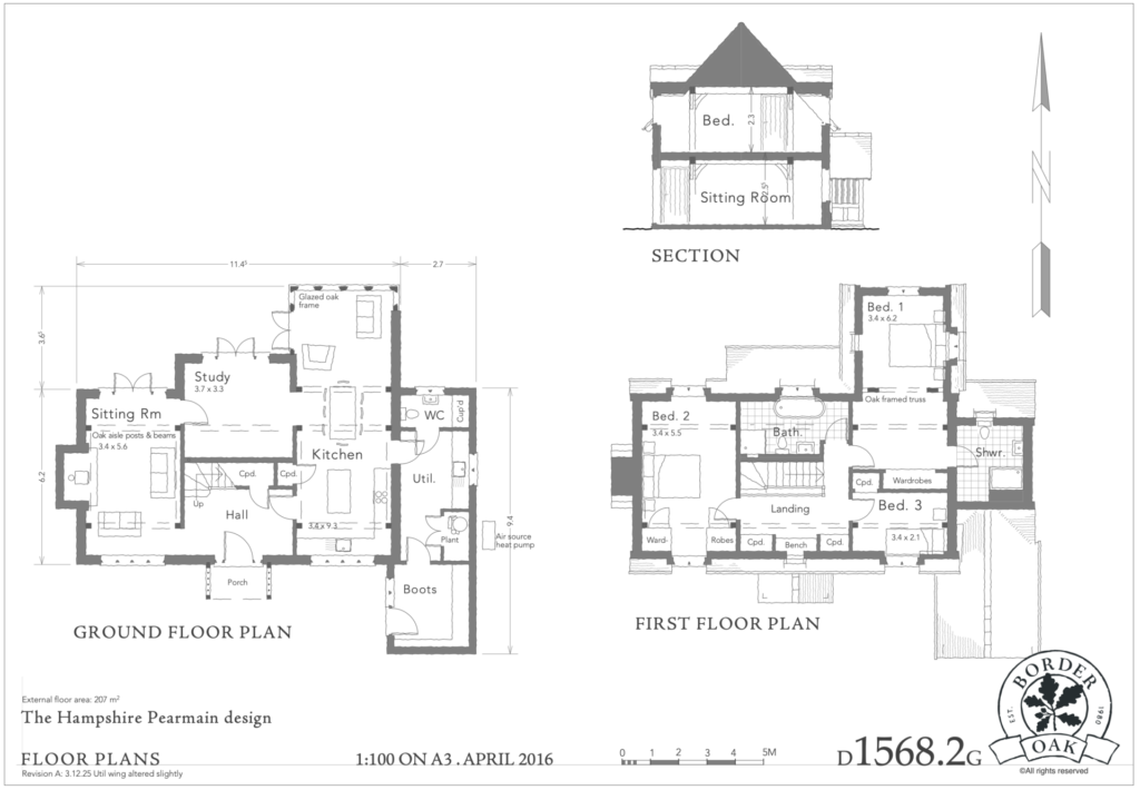
Hampshire Pearmain
Located on the very edge of a heritage village, overlooking grassy meadows and adjacent to a traditional oast house, this beautiful variation of Pearmain Cottage showcases just how adaptable the premise of the original design is.



Although closely related to St Michaels Cottage, (the Border Oak showhome in Herefordshire), Hope Cottage is a bespoke design created for this specific site and our clients wishes.
To the primary cottage core (a two and a half bay structure, one and a half storeys tall) we have added a ‘lean to’ extension at the rear of the house, creating a generous home office with access to the pretty garden. There is a further addition to the front elevation with the utility annex extended forward to form a boot room (and plant area for the air source heat pump) with another entrance. This layout helps enclose the front courtyard and works well with the independent home office which sits above the adjacent Border Oak outbuilding.
The project has been beautifully finished by our clients using classical, natural materials married with heirloom pieces which creates a sense of personality and warmth. All of the rooms have access to the pretty cottage garden, which complements the lime render, handmade bricks, painted weatherboard and handmade clay tiles.
The plot was originally part of the neighbouring property’s garden and the Border Oak design team worked in partnership with the landowner to prepare and submit a persuasive planning application. The planning process was relatively straightforward, and the site then went onto the open market with detailed planning approval for a bespoke Border Oak home.
Our clients were thrilled to find an edge of village site with detailed planning permission for their favourite Border Oak design. There was a lot of competition for the plot, but they secured the land because they were committed to building the approved design with Border Oak, (as per the landowners stipulations as they lived next door).
Project Specifics
LOCATION: Hampshire
SIZE: 206m2
FEATURES: Large Kitchen with fully glazed dining area. Additional accommodation above the outbuilding. Vaulted ceilings.
BORDER OAK SCOPE OF WORKS: Design and Full Build including project management

Plans



























Customer Comment
“Border Oak were there to help whenever we needed them. We wouldn’t change a thing, we absolutely love everything about our home“